トップページ > 物件検索 > 埼玉県 の貸倉庫・貸工場 > 戸田市 の貸倉庫・貸工場 > 戸田市笹目南町5-13 笹目南町工場
埼玉県戸田市笹目南町5-13 笹目南町工場 詳細データ
電話番号(03-6260-6586)です。 >> お問い合わせの際は物件番号 36614 をお知らせ下さい。※不動産業者様へのご紹介は不可です。
| 物件名 | 笹目南町工場 |
|---|---|
| 沿線/駅 | JR埼京線 / 戸田 |
| バス/徒歩 | バス:8 分 / 徒歩:4 分 |
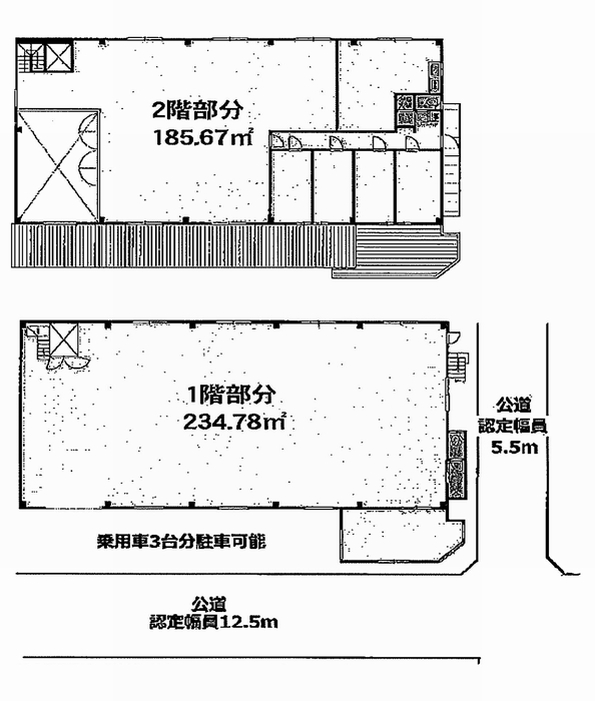
| 所在地 | 埼玉県戸田市笹目南町5-13 |
| 賃料(坪・円) | 坪 3,983 円 (総額 685,800 円) |
| 共益費 | |
| 使用面積 | 172.18 坪 |
| 敷地面積 | - 坪 |
| 礼金 | 2 ヶ月 |
| 敷金 | 3 ヶ月 |
| 保証金 | - |
| 構造 | 鉄骨造 |
| 竣工年 | 2004 年 |
| 所在階 | 1-2/2 階 |
| 接道状況 | 5.5m、12.5m |
| 用途地域 | 準工業地域 |
| 駐車場 | 有 |
| 契約期間 | 3 年 |
| 現況 | 使用中 |
| 備考 | P3台付 ホイストリフト 流し台 |
| 貸し倉庫・工場・貸し土地の事業用ポータルサイトNo.1 |
|---|
|
テナントSNAPでは埼玉県戸田市笹目南町5-13をはじめ、東京・神奈川・千葉・埼玉・横浜・川崎等、首都圏を中心に貸し倉庫・工場・貸し土地の情報を簡単検索。埼玉県戸田市笹目南町5-13のクレーン付、キュービクル、工業地域の貸倉庫・貸工場も情報満載!埼玉県戸田市笹目南町5-13で貸し倉庫・貸し工場・貸地・貸倉庫・貸工場・貸地は物件数No1のテナントSNAPにお任せ下さい。その他、埼玉県戸田市笹目南町5-13で貸し倉庫・工場・貸し土地を所有のオーナー様には無料で貸し倉庫・貸し工場の広告を掲載致します。貸し倉庫・工場・貸し土地を貸したい方も是非、テナントSNAPにお任せ下さい。 |
東京エリア
- 有楽町/
- 田町/
- 原宿/
- 代々木/
- 池袋/
- 飯田橋/
- 御茶ノ水/
- 明大前/
- 用賀/
- 銀座/
- 東銀座/
- 大門/
- 御成門/
- 赤坂見附/
- 赤坂/
- 祖師ヶ谷大蔵/
- 四ツ谷/
- 市ヶ谷/
- 秋葉原/
- 代官山/
- 神谷町/
- 自由が丘/
- 溜池山王/
- 芝公園/
- 赤羽橋/
- 三田/
- 外苑前/
- 赤羽/
- 上野/
- 錦糸町/
- 水道橋/
- 蒲田/
- 千歳船橋/
- 森下/
- 西大島/
- 東大島/
- 篠崎/
- 東陽町/
- 越中島/
- 潮見/
- 南砂町/
- 清澄白河/
- 水天宮前/
- 小岩/
- 平井/
- 本所吾妻橋/
- 浅草橋/
- 稲荷町/
- 田原町/
- 蔵前/
- 東あずま/
- 業平橋/
- 小村井/
- 曳舟/
- 東向島/
- 鐘ヶ淵/
- 堀切/
- 牛田/
- 八広/
- 小菅/
- 四ツ木/
- 柴又/
- 五反野/
- 青井/
- 梅島/
- 北綾瀬/
- 六町/
- お花茶屋/
- 堀切菖蒲園/
- 西新井/
- 亀有/
- 金町/
- 竹ノ塚/
- 三ノ輪/
- 入谷/
- 三河島/
- 舎人/
- 東十条/
- 上中里/
- 大塚/
- 日暮里/
- 西日暮里/
- 鶯谷/
- 西高島平/
- 西台/
- 蓮根/
- 本蓮沼/
- 板橋本町/
- 板橋区役所前/
- 成増/
- 平和台/
- 氷川台/
- 中村橋/
- 江古田/
- 桜台/
- 石神井公園/
- 大泉学園/
- 梅屋敷/
- 六郷土手/
- 雑色/
- 昭和島/
- 矢口渡/
- 千鳥町/
- 西馬込/
- 戸越/
- 武蔵小山/
- 浮間舟渡/
- 江北/
神奈川エリア
- みなとみらい/
- 関内/
- 石川町/
- 馬車道/
- 元町・中華街/
- 新横浜/
- たまプラーザ/
- あざみ野/
- 長津田/
- 洋光台/
- 港南台/
- 鴨居/
- 二俣川/
- 向ヶ丘遊園/
- 仲町台/
- 金沢文庫/
- 中央林間/
- 綱島/
- 大倉山/
- 菊名/
- 日吉/
- 溝の口/
- 上大岡/
- 横須賀中央/
- 都筑ふれあいの丘/
- 東山田/
- 三ッ沢上町/
- 白楽/
- 六浦/
- 並木北/
- 三浦海岸/
- 安善/
- 鶴巻温泉/
- 東海大学前/
- 本郷台/
- 踊場/
- 立場/
- 上永谷/
- 吉野町/
- 南林間/
- 鶴間/
千葉エリア
- 下総中山/
- 津田沼/
- 南行徳/
- 幕張本郷/
- 新松戸/
- 江戸川台/
- 成田空港/
- 東海神/
- 海神/
- 姉ヶ崎/
- 誉田/
- 鎌取/
- 市川真間/
- 国府台/
- 西白井/
- 公津の杜/
- 南柏/
- 薬園台/
- 船橋法典/
- 東中山/
- 北小金/
- 豊四季/
- 船橋日大前/
- 市川大野/
- 馬込沢/
- 勝田台/
- 北松戸/
- 松戸新田/
- 実籾/
- 六実/
- 高根木戸/
- 滝不動/
- 増尾/
- 愛宕/
- 南流山/
- 成東/
- 小室/
- 千城台/
- 飯山満/
- 八柱/




